Parroquia de la Asunción de Lerín
La planta
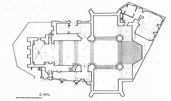
La iglesia parroquial de Lerín presenta una planta de cruz latina compuesta por una nave, crucero saliente y cabecera formada por capilla mayor poligonal de tres lados y dos capillas laterales. El crucero aparece estructurado en tres cuadrados de idénticas dimensiones. La nave de la iglesia se cubre con cuatro tramos de bóveda de cañón con lunetos reforzada con arcos fajones decorados con casetones y rosetas. Las trazas fueron dadas en el último tercio del siglo XVI por el italiano Juan Luis de Musante y Amador de Segura, a las que hay que sumar una pequeña aportación de Juan de Villarreal. Los tres cuadrados del crucero presentan bóvedas vaídas reforzadas con arcos torales de idéntica decoración y la capilla mayor una bóveda de cañón casetonada y también con rosetas. En lo que respecta a las capillas laterales del crucero, estas están coronadas sendas cúpulas con casetones y puntas de diamante apoyadas en pechinas gallonadas. A los pies del templo se levanta el coro edificado en 1799 por Ildefonso Arbizu sobre un sotocoro cubierto por una bóveda de medio cañón con lunetos y al que se accede a través de un arco de medio punto. El coro alto por su parte queda cubierto por una bóveda de crucería del siglo XIV. En la cabecera en el lado del Evangelio se adosa la sacristía barroca erigida en 1709 por el maestro corellano Juan de Argós y su hijo Tomás.
-
FERNÁNDEZ GRACIA, R, El retablo barroco en Navarra, Pamplona, Gobierno de Navarra, 2002.
-
GARCÍA GAINZA, M.C. y otros, Catálogo Monumental de Navarra, II**. Merindad de Estella, Pamplona, Gobierno de Navarra, 1983.
-
GARNICA, A. Y ONA, J.L. (coords.), Lerín. Historia, naturaleza, arte, Lerín, Ayuntamiento de Lerín, 2010.
-
TARIFA CASTILLA, M.J., "La iglesia parroquial de Lerín: ejemplo excepcional de arquitectura manierista en Navarra", Príncipe de Viana, 246, 2009, pp. 7-40.











