Ruta de navegación

Aplicaciones anidadas

Sofia_Aldama_Imagen

Sofía Aldama Ingham 

Sofia_Aldama_Ficha

Sofía Aldama Ingham

In terram

Proyecto Fin de Carrera Máster Universitario de Arquitectura

Universidad de Navarra

Tutor: Jorge Tárrago Mingo

Sofia_Aldama_Texto

Proyecto de Sofía Aldama Ingham

El proyecto in terram parte de la interpretación del término comensalidad, un concepto que sugiere el acto de reunirse para compartir comida y disfrutar de la compañía. Este acto, que ha ido evolucionado a lo largo del tiempo, puede asociarse actualmente con situaciones formales, como banquetes o bodas, o con encuentros más informales, como un picnic o la comida rápida. Lo esencial es con quién se comparte y el espacio que lo acoge. Pero ¿cuándo comenzó y se definió este acto? 

Si nos remontamos a la prehistoria, la comensalidad nació con aquellos primeros actos sociales del ser humano, bajo una cueva y alrededor del fuego. Es por esto, por lo que este proyecto busca transmitir la sensación espacial de estar bajo algo, bajo tierra o en la tierra.

Proyecto de Sofía Aldama Ingham

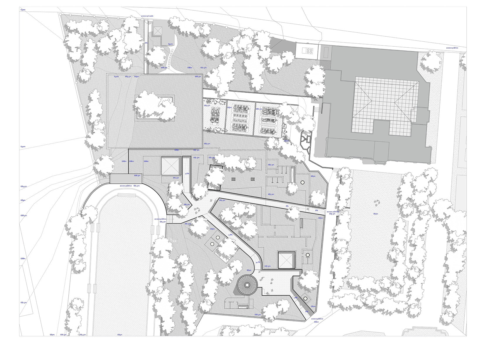
Para continuar con este propósito, es fundamental comprender el entorno donde se implanta: la Quinta de los Molinos. Esta finca histórica cuenta con 21 hectáreas y varios accesos, siendo el principal el sur por la calle de Alcalá, dejando así una zona norte menos transitada, donde el único foco de actividad se concentra en el palacete histórico. La topografía asciende de sur a norte, con un desnivel de 17 metros entre las cotas extremas, destacando los saltos topográficos y la elevación máximos en la zona noroeste, siendo esta la más desangelada del conjunto. 

Estas condiciones, su topografía y menor actividad, hacen que la zona noroeste sea el lugar para la creación de un proyecto que dialogue con la tierra, enterrándose o integrándose en ella, a la vez que contribuye a reactivar el área.

Proyecto de Sofía Aldama Ingham

Proyecto de Sofía Aldama Ingham

Tras analizar exhaustivamente dicha zona, considerando sus limitaciones, oportunidades y sus elementos arquitectónicos y contenciones existentes, se propone un proyecto articulado en tres ejes, siendo el principal una diagonal sureste-noroeste que organiza el programa de lo más público a lo más privado: de la comensalidad a la residencia. El recorrido, ascendente y “atrincherado”, estructura todo el conjunto. Ningún volumen sobresale sobre línea de cota, salvo la cúpula de la comensalidad, dado su carácter protagonista en el proyecto; y el bloque residencial por razones de habitabilidad. Se crean patios y lucernarios que garantizan la iluminación y ventilación natural hacia el interior.

Proyecto de Sofía Aldama Ingham

Proyecto de Sofía Aldama Ingham

El proyecto se descubre progresivamente al seccionarse, en planta, por diferentes cotas hasta llegar a la 686 m, una de las cuales puede apreciarse en su totalidad su extensión de 1.052 m2 útiles. Se proponen cinco accesos: tres mediante rampas y dos elementos reacondicionados, el frontón y las escaleras existentes.

Proyecto de Sofía Aldama Ingham

Proyecto de Sofía Aldama Ingham

La estructura se resuelve con muros de contención de hormigón armado, que permiten así su condición enterrada, semienterrada o a cielo abierto, minimizando el impacto visual sobre el entorno e integrándose de forma natural en el paisaje. Este material, de árido fino y que ofrece un acabado liso y preciso, es el predominante del proyecto. Adicionalmente, aparece la madera de nogal para aportar calidez, especialmente en la zona residencial donde, además, se proponen unas camas encastradas o embebidas en el suelo para reforzar la sensación de lo telúrico, de pertenecer a la tierra.

Proyecto de Sofía Aldama Ingham

Proyecto de Sofía Aldama Ingham

Así, in terram se concibe como una vuelta a los orígenes: un espacio donde la comensalidad recupera su sentido primitivo de reunión bajo tierra, reinterpretado mediante una arquitectura que une naturaleza, materia y experiencia humana. 

TITLE_Más proyectos

Más proyectos

Aplicaciones anidadas

Ana_Fernandez_Mas_Proyectos_Texto

Espacio Tejido. Nueva intervención en la Real Fábrica de Tapices

Ana Fernández Moraleda

Ver proyecto "Espacio Tejido. Nueva intervención en la Real Fábrica de Tapices"

Ana_Fernandez_Mas_Proyectos_Imagen

Ver proyecto "Espacio Tejido. Nueva intervención en la Real Fábrica de Tapices"