Ruta de navegación

Aplicaciones anidadas

Roberto_Perez_Imagen

Roberto Pérez-Guerras Galoche 

Roberto_Perez_Ficha

Roberto Pérez-Guerras Galoche

GOI.SPACE-159A

Proyecto Fin de Carrera Máster Universitario de Arquitectura

Universidad de Navarra

Roberto_Perez_Texto

Proyecto de Roberto Pérez-Guerras Galocha

Conocido como el Palacete de la Fundación Goicoechea-Isusi. Se trata de un inmueble neomudéjar de finales del siglo XIX que fue utilizado como asilo y posteriormente quedó abandonado desde los años 90.

Proyecto de Roberto Pérez-Guerras Galocha

Por su historia, su localización y su estado, General Ricardos 159 se ha convertido en un símbolo de lo que muchos vecinos consideran una oportunidad perdida para el distrito. Aun así, sigue siendo un lugar de gran interés urbano y cultural en el corazón de Carabanchel.

Proyecto de Roberto Pérez-Guerras Galocha

Proyecto de Roberto Pérez-Guerras Galocha

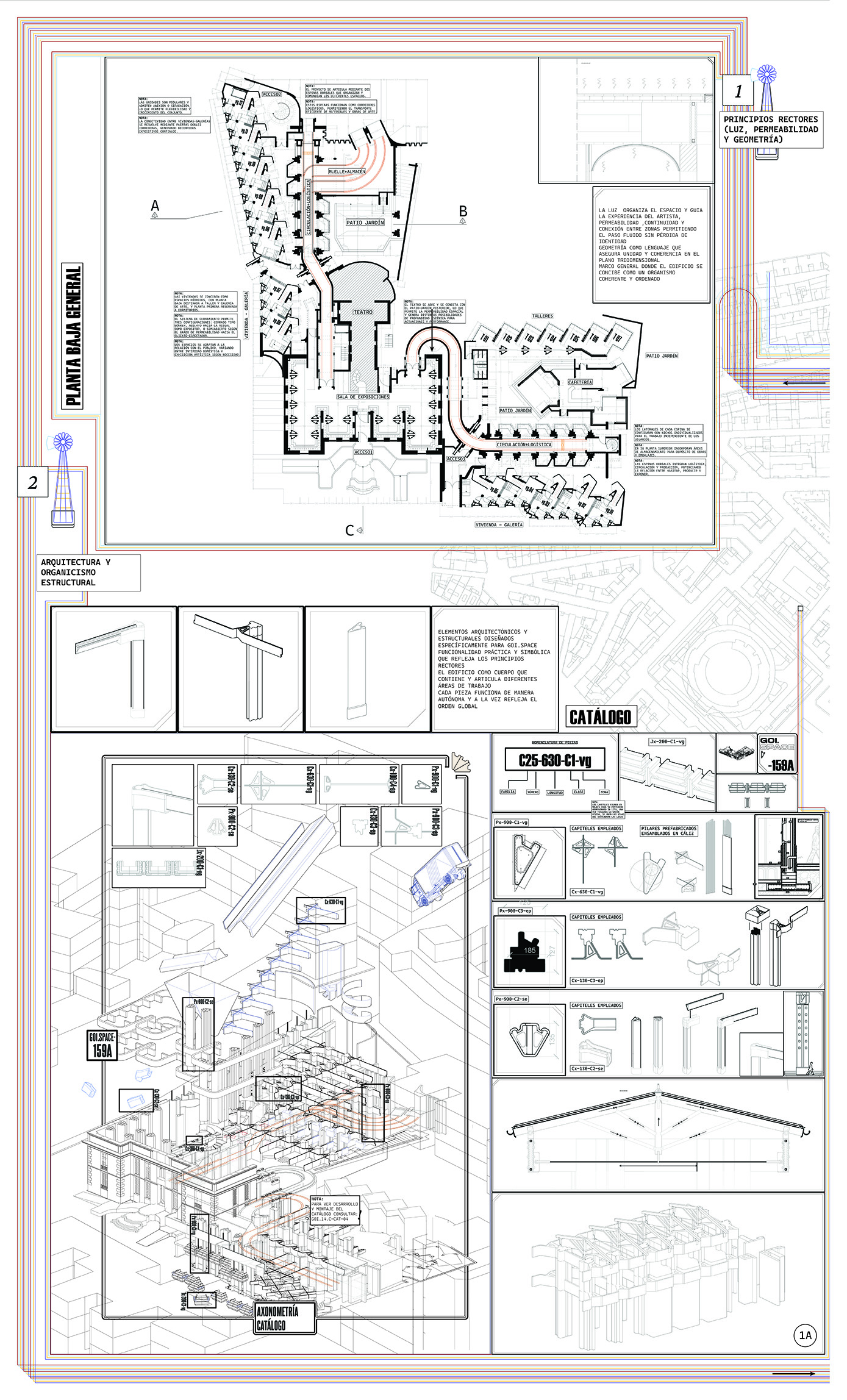
1. Principios rectores (luz, permeabilidad y geometría)

La luz organiza el espacio y guía la experiencia del artista, permeabilidad, continuidad y conexión entre zonas permitiendo el paso fluido sin pérdida de identidad. Geometría como lenguaje que asegura unidad y coherencia en el plano tridimensional. Marco general donde el edificio se concibe como un organismo coherente y ordenado.

2. Arquitectura y organicismo estructural

Los elementos arquitectónicos y estructurales están diseñados específicamente para GOI.SPACE. Funcionalidad práctica y simbólica que refleja los principios rectores. El edificio como cuerpo que contiene y articula diferentes áreas de trabajo. Cada pieza funciona de manera autónoma y a la vez refleja el orden global.

Proyecto de Roberto Pérez-Guerras Galocha

El proyecto se articula mediante dos espinas dorsales que organizan y comunican los diferentes espacios. Estas espinas funcionan como corredores logísticos, permitiendo el transporte eficiente de materiales y obras de arte.

Las unidades son modulares y admiten anexión o separación, lo que permite flexibilidad y crecimiento del conjunto.

La conectividad entre viviendas-galerías se resuelve mediante puertas dobles correderas, generando recorridos expositivos continuos.

Las viviendas se conciben como espacios híbridos, con planta baja destinada a taller y galería de arte, y planta primera reservada a dormitorios. El sistema de cerramiento permite tres configuraciones: cerrado tipo búnker, abierto hacia la visual como expositor, o semiabierto según el grado de permeabilidad hacia el cliente-espectador. Los espacios se adaptan a la relación con el público, variando entre intimidad doméstica y exhibición artística según necesidad.

El teatro se abre y se conecta con el patio-jardín posterior, lo que permite la permeabilidad espacial y genera distintas posibilidades de profundidad escénica para actuaciones y performance.

Los laterales de cada espina se configuran con nichos individualizados para el trabajo independiente de los usuarios. En su planta superior incorporan áreas de almacenamiento para depósito de obras y embalajes.

Las espinas dorsales integran logística, circulación y producción, potenciando la relación entre habitar, producir y exponer.

Proyecto de Roberto Pérez-Guerras Galocha

3. Dinámica espacial

Las viviendas se conciben como espacios híbridos, con planta baja destinada a taller y galería de arte, y planta primera reservada a dormitorios.

El sistema de cerramiento permite tres configuraciones: cerrado tipo búnker, abierto hacia la visual como expositor, o semiabierto según el grado de permeabilidad hacia el cliente-espectador.

Los espacios se adaptan a la relación con el público, variando entre intimidad doméstica y exhibición artística según necesidad.

Espacios conectados: talleres, salas de creación, áreas de tránsito y almacenamiento. Movilidad interna que facilita el desplazamiento de materiales y personas. Gestión de la luz real adaptada a las necesidades del proceso creativo. Respuesta del espacio como extensión del trabajo del artista.

Proyecto de Roberto Pérez-Guerras Galocha

4. Sentidos del entorno

El artista puede interactuar con la memoria a través de una inteligencia artificial local, conocerá el edificio al completo. Puede mantener constancia de la presencia y contexto del artista en diferentes zonas del edificio mientras este trabaja en otros lugares.

Proyecto de Roberto Pérez-Guerras Galocha

Proyecto de Roberto Pérez-Guerras Galocha

5. Núcleo inteligente

SYNAPTIC GOI.AI como cerebro operativo que centraliza y procesa información. Memoria persistente que guarda datos del edificio y del usuario, asegurando continuidad. Interacción local mediante interfaz conversacional o táctil, sin depender de internet. Conectividad entre todas las escalas para formar una red unificada y coherente.

Proyecto de Roberto Pérez-Guerras Galocha

GOI.SPACE se concibe como un sistema multiescalar que articula desde las dimensiones más amplias de la idea hasta los detalles más concretos del funcionamiento. Su base son tres principios: luz, permeabilidad y geometría. La luz se entiende como recurso de orden y control, la permeabilidad como capacidad de interconexión entre espacios y la geometría como eje que organiza y unifica el conjunto en el plano tridimensional.

Desde esta escala global, el proyecto desciende hacia lo estructural, donde se materializa mediante elementos arquitectónicos, piezas de soporte y módulos auxiliares diseñados específicamente para su operación. Cada uno de ellos funciona como una unidad autónoma y, a la vez, como parte de un organismo mayor, reflejando la lógica del sistema en su propio nivel.

En su escala más reducida, GOI.AI opera como núcleo de control y monitorización. Recibe y procesa datos de sensores distribuidos en el edificio, mantiene una memoria persistente y permite que el usuario interactúe mediante una interfaz conversacional. De este modo, lo conceptual, lo estructural y lo digital se integran en una red unificada, donde cada parte participa y refleja el funcionamiento del todo.

TITLE_Más proyectos

Más proyectos

Aplicaciones anidadas

Sabina_Benedetti_Mas_Proyectos_Texto

La Esponja - Centro de Fitorremediación y Jardín Botánico

Sabina Benedetti Lara

Ver proyecto "La Esponja - Centro de Fitorremediación y Jardín Botánico"

Sabina_Benedetti_Mas_Proyectos_Imagen

Ver proyecto "La Esponja - Centro de Fitorremediación y Jardín Botánico"