Ruta de navegación

Aplicaciones anidadas

Irene_Delatorre_Imagen

Irene de la Torre Page 

Irene_Delatorre_Ficha

Irene de la Torre Page

Raíces: coliving intergeneracional y regeneración urbana en Atocha

Proyecto Fin de Carrera Máster Universitario de Arquitectura

Universidad de Navarra

Tutor: Elizabeth Abalo Díaz

Irene_Delatorre_Texto

Proyecto de Irene de la Torre Page

El proyecto se sitúa en el distrito de Retiro, en un enclave estratégico entre la estación de Atocha y el parque de El Retiro. La intervención busca actuar como pieza conectora entre ambos lugares emblemáticos y, al mismo tiempo, dar respuesta a una problemática social cada vez más presente.

Proyecto de Irene de la Torre Page

Madrid vive fuertes tensiones residenciales que afectan especialmente a jóvenes y personas mayores, pero el reto no es únicamente económico. Aumentan la dependencia, la pérdida de rol activo y la soledad no deseada en mayores, mientras muchos jóvenes sufren aislamiento y falta de redes de apoyo. Ante este panorama, el proyecto desarrolla un coliving intergeneracional que promueve el encuentro cotidiano y el cuidado mutuo, donde la convivencia se apoya en la relación directa entre naturaleza y arquitectura. Huertos comunitarios, jardines y espacios de aprendizaje se integran como soporte para la transmisión de conocimiento, la vida compartida y el ocio, reforzando el bienestar físico y emocional asociado a las relaciones intergeneracionales en entornos verdes.

Proyecto de Irene de la Torre Page

La intervención se organiza en dos ámbitos complementarios. Por un lado, el terreno se adapta mediante un sistema de rampas accesibles que construye un recorrido continuo hasta la plataforma superior, acompañado de taludes ajardinados que transforman la topografía en paisaje habitable. Por otro, el edificio se eleva para generar un umbral entre la calle principal y el jardín posterior, funcionando como puerta de entrada y pieza urbana de transición. Con ello, se activa una conexión física y visual con el espacio verde no solo para los residentes, sino también para la ciudad.

Proyecto de Irene de la Torre Page

La propuesta paisajística convierte el desnivel en un itinerario ajardinado diseñado con vegetación autóctona para la estabilización de taludes y la creación de zonas de estancia. Una “línea de agua” acompaña el camino, riega por filtración lateral una franja cultivada y refuerza el vínculo sensorial con el entorno. Esta franja se relaciona con los huertos de cubierta, consolidando la continuidad entre un paisaje productivo y contemplativo que conecta lo cotidiano con lo natural.

 

Proyecto de Irene de la Torre Page

 

Proyecto de Irene de la Torre Page

El acceso al edificio se realiza desde el paseo de la Infanta Isabel. Dos grandes pilares albergan los núcleos de comunicación. En planta sótano se sitúan dos salas polivalentes de uso público junto a las instalaciones, iluminadas mediante lucernarios integrados en el pavimento exterior. En planta primera se concentran los usos comunes (rehabilitación y gimnasio, coworking, comedor común, sala de estar, sala polivalente y lavandería). Las plantas superiores alojan las viviendas, organizadas con orientación norte-sur para favorecer la ventilación cruzada y una matriz flexible de estancias de dimensiones similares, manteniendo los núcleos húmedos en posición central. En cubierta, un invernadero y huertos comunitarios completan el conjunto, orientados tanto al autoconsumo como a talleres agrícolas abiertos a la ciudad.

Proyecto de Irene de la Torre Page

 

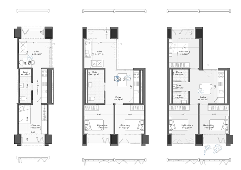
La circulación se resuelve mediante una galería exterior abierta que da acceso a las viviendas y crea espacios de estancia periódicos, fomentando el encuentro y la convivencia. Se desarrollan tres tipologías: vivienda mínima para una persona (con posibilidad de intercambio funcional entre salón y dormitorio), vivienda para dos personas (ampliación de un módulo) y vivienda para tres (transformación del salón en dormitorio y baño desdoblado para facilitar el uso). 

Proyecto de Irene de la Torre Page

 

Proyecto de Irene de la Torre Page

 

La fachada sur, con mallorquinas plegables de madera, configura una imagen dinámica y adaptable que permite el control solar y lumínico.

Proyecto de Irene de la Torre Page

TITLE_Más proyectos

Más proyectos

Aplicaciones anidadas

Julia_Ruiz_Mas_Proyectos_Texto

Fundación Chillida, Sede en Madrid

Julia Ruiz Castell

Ver proyecto "Fundación Chillida, Sede en Madrid"

Julia_Ruiz_Mas_Proyectos_Imagen

Ver proyecto "Fundación Chillida, Sede en Madrid"